Custom Homes

Lot O'Charm

1.16 acre

Address: 13919 SW 73rd, Rolling Hills FL 34481

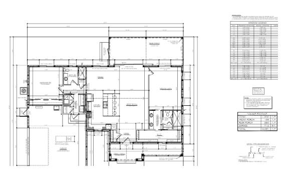
This LOT O' CHARM property includes two buildings with a combination of 4,114 sq. ft. under roof:
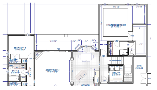
* *Main House* is 1,800 sq. ft. with 3,091 sq. ft. under roof. Enjoy a large Master Suite and Guest room, 2 bathrooms. Covered front porch and screened
lanai provides woodland views for sunrise and sunset.
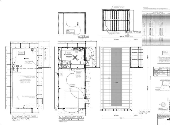
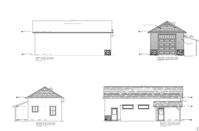
* *Bldg #2*: "RV / GUEST Suite, 236 sq.ft provides third bedroom, bathroom, kitchenette, oversized RV storage or workshop with 12 ft, tall doors. Covered, private entry. 1,020 sq ft. under roof.  

Enjoy the beautiful country, fresh air, on this wooded lot located in Rolling Hills, close to the World's largest Equestrian Center, and Rainbow
Springs for kayaking and hiking adventures.

With combined over 4,100 sq feet under roof, you can enjoy designing your custom home finishes to your specifications! With two large bedrooms in the main house, and a detached guest suite with private entrance and covered porch on site, it is great for guest accommodations! High end custom kitchen cabinetry, quartz countertops in kitchen with vaulted ceiling rooms. No threshold showers, hidden "secure room" in master closet, dining room, large front porch and screened in lanai for capturing those perfect sunsets.

The oversized 2.5 car Garage w/ 8' tall doors for SUV's and spacious enough for a generous workspace and storing of seasonal decor. Plenty of room for building a swimming pool /hot tub between the two buildings, fire pit and tree swing already built and installed on a huge Live Oak.

Workshop / RV storage is perfect for storing your Class B Motorhome underroof, with electrical and water hookups outside for a larger RV visitors, or enjoy your workshop built to suit your needs.

Ocala National Forests nearby for hiking, swimming, fishing and boating.

Shiloh

Associations


Neil McGowan 

General Contractor

President & Senior Designer
NavigatorNeil@gmail.com
Office: 352-634-2924, Cell: 847-961-8544 * CRC #1332239